Volets roulants mono-blocs
Volets roulants MCA UNIBOX
Les volets roulants à isolation thermique MCA UNIBOX permettent l'installation du caisson au-dessus de la menuiserie. Les caissons peuvent avoir la même couleur que les murs (intérieurs ou extérieurs). Les volets roulants UNIBOX PLUS ont un caisson dont la partie inférieure peut être enlevée et servir comme trappe de visite pour un entretien facile qui ne dégrade pas les fintitions.
Avantages
- Fraîcheur "naturelle" qui ne permet pas la surchauffe de votre appartement pendant les jours de canicule.
- Ombre: flexibilité quant à la lumière naturelle qu'on laisse entrer dans la pièce; ainsi vous pouvez avoir un bon sommeil pendant la journée.
- Sécurité et protection contre les intrus. Les systèmes électriques permettent d'ouvrir et de fermer les volets aux heures voulues afin de simuler la présence.
- Intimité: protections des regards indiscrets surtout quand vos fenêtres donnent sur la rue ou bien sur l'appartement du voisin.
- Isolation thermique supérieure.
- Protection de la menuiserie contre la pluie, le vent, la neige ou la grêle.
- Protection de vos meubles et de vos décorations contre la décoloration et la dégradation.
- Manoeuvre manuelle ou bien à l'aide d'une télécommande.
- Large gamme de couleurs pour harmoniser les volets à la façade.
- Moustiquaire en option.
- Prévention des pertes de chaleur pendant l'hiver.
- Facture de chauffage réduite de 10%.
Présentation vidéo
-
Volets roulants mono-blocs - UNIBOX avec moustiquaire intégrée și acționare prin Sangle
-
Volets roulants superposés - UNIBOX double avec moustiquaire intégrée et manoeuvre par sangle et manivelle
-
Volets roulants superposés - UNIBOX PLUS à manoeuvre par sangle
-
Volets roulants superposés - UNIBOX PLUS double à manoeuvre par sangle
Manœuvre et accessoires
Couleurs pour les lames de 37 mm
Données techniques
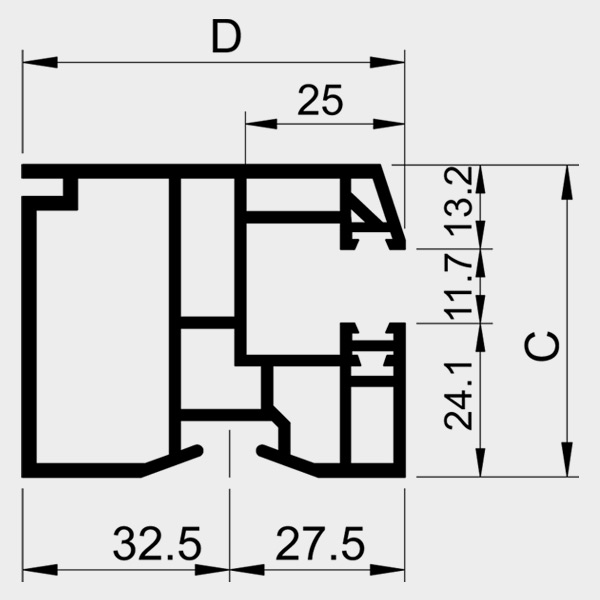
Volets roulants mono-blocs - UNIBOX
| Lame | Dimensions du caisson | Dimensions de la coulisse | Largeur maximale |
Hauteur maximale | Surface maximale | ||||
|---|---|---|---|---|---|---|---|---|---|
| 37mm | A | B | C | D | 2600mm | Sangle | Manivelle/ressort/électrique | Sangle | Manivelle/ressort/électrique |
| 155mm | 180mm | 49mm | 60mm - simple 70mm - “H” |
1600mm | 1350mm | 2.5mp | 5mp | ||
| 181mm | 206mm | 2250mm | 2150mm | ||||||
| 220mm | 245mm | 3600mm | 3400mm | ||||||
Volets roulants mono-blocs - UNIBOX avec moustiquaire intégrée
| Lame | Dimensions du caisson | Dimensions de la coulisse | Largeur maximale |
Hauteur maximale | Surface maximale | ||||
|---|---|---|---|---|---|---|---|---|---|
| 37mm | A | B | C | D | 2600mm | Sangle | Manivelle/ressort/électrique | Sangle | Manivelle/ressort/électrique |
| 155mm | 199mm | 66.5mm | 60mm | 1350mm | 1150mm | 2.5mp | 5mp | ||
| 181mm | 224mm | 2250mm | 2150mm | ||||||
| 220mm | 263mm | 2500mm | 2500mm | ||||||
Volets roulants mono-blocs - UNIBOX PLUS
| Lame | Dimensions du caisson | Dimensions de la coulisse | Largeur maximale |
Hauteur maximale | Surface maximale | ||||
|---|---|---|---|---|---|---|---|---|---|
| 37mm | A | B | C | D | 2600mm | Sangle | Manivelle/ressort/électrique | Sangle | Manivelle/ressort/électrique |
| 175mm | 220mm | 49mm | 60mm-simple 70mm - “H” |
1550mm | 1330mm | 2.5mp | 5mp | ||
| 200mm | 220mm | 2660mm | 2360mm | ||||||
| 240mm | 255mm | 4250mm | 4030mm | ||||||
Volets roulants mono-blocs - UNIBOX PLUS avec moustiquaire intégrée
| Lame | Dimensions du caisson | Dimensions de la coulisse | Largeur maximale |
Hauteur maximale | Surface maximale | ||||
|---|---|---|---|---|---|---|---|---|---|
| 37mm | A | B | C | D | 2600mm | Sangle | Manivelle/ressort/électrique | Sangle | Manivelle/ressort/électrique |
| 175mm | 220mm | 66.5mm | 60mm | 1550mm | 1330mm | 2.5mp | 5mp | ||
| 200mm | 220mm | 2660mm | 2360mm | ||||||
| 240mm | 255mm | 4250mm | 4030mm | ||||||







































